ZSPQ气动活塞快速切断阀
- 销售:021-32051999
- 销售:021-32050777
- 传真:021-66099555
详情介绍
- 产品介绍
- 服务承诺
- 订货流程
ZSPQ气动活塞切断阀由切断机构与气动活塞执行机构组成。切断机构采用直通单座形成,DN20阀芯为单导向,DN25~200阀芯为双导向,具有结构简单、操作方便、使用可靠、快速开闭等特点。主要应用于无杂质、无颗粒的液体、气体介质,要求快速严密关闭,快速放空的自动控制系统中。
产品符合GB/T4213-92。
气动活塞切断阀 主要零件材料
零件名称 | 材料 |
阀体、阀盖 | ZG270-500、ZG1Cr18Ni9Ti |
阀杆、阀芯 | 1Cr18Ni9 |
密封填料 | V型聚四氟乙烯 |
密封垫 | 1Cr18Ni9夹石棉板 |
蜗杆 | 45 |
O型密封圈 | 耐油橡胶 |
压缩弹簧 | 60Si2Mn |
支架 | HT270 |
蜗轮箱、蜗轮、气缸、轴承盖、活塞 | HT200 |
推杆 | 2Cr13 |
气动活塞切断阀 型号、规格
类别 | 软密封 | 硬密封 | ||
常温型 | 中温型 | 高温型 | 低温型 | |
型号 | ZSPQ-40 | ZSPQ-40G | ZSPQ-40G | ZSPQ-40D |
规格 | DN20~200 | |||
气动活塞切断阀 执行机构
切断机构
公称通径 mm | 20 | 25 | 32 | 40 | 50 | 65 | 80 | 100 | 125 | 150 | 200 | 250 | 300 | 350 | 400 |
阀座直径 mm | 26 | 43 | 43 | 52 | 62 | 79 | 94 | 115 | 145 | 166 | 216 | 可与本公司 | |||
额定流量系数 Kv | 6.5 | 10 | 15 | 25 | 40 | 65 | 100 | 150 | 260 | 350 | 540 | ||||
公称压力 MPa | 4.0(JB/T79·2-94) | ||||||||||||||
行程 mm | 16 | 25 | 40 | 60 | |||||||||||
介质温度 ℃ | -16~150(常温);-60~450(中温);-60~550(高温);-250~60(低温); | ||||||||||||||
流量特性 | 两位快开式 | ||||||||||||||
配执行机构 | ZSD-D | ZSD-3 | ZSD-5 | ZSD-7 | |||||||||||
法兰尺寸、型式 | 按JB/T79·2-94凹式(常、中、高温);按JB/T79·3-94榫槽式(低温) | ||||||||||||||
阀体材质 | ZG270-500;ZG1Cr18Ni9Ti;ZG0Cr18Ni12Mo2Ti | ||||||||||||||
活塞执行机构
型号 | ZSD-D | ZSD-3 | ZSD-5 | ZSD-7 |
活塞直径 mm | 150 | 200 | 300 | 400 |
you效面积 cm2 | 175 | 305 | 700 | 1245 |
行程 mm | 16 | 25 | 40 | 60 |
进气孔螺纹 | M16×1.5 | M20×1.5 | M24×2 | |
大输出力 N | 7200 | 12800 | 29300 | 5200 |
可配附件 | 空气过滤减压器、保位阀、行程开关、阀位传送器、电磁阀、手轮机构等 | |||
操作气源压力 KPa | 500 | |||
气动活塞切断阀 性能指标
公称通径 mm | 20 | 25 | 32 | 40 | 50 | 65 | 80 | 100 | 125 | 150 | 200 | |
泄漏量 | 软密封 | 0 | ||||||||||
硬密封 | 1 | 3 | 5 | 7 | 9 | |||||||
切断时间 S | 1~2 | 2~4 | ||||||||||
| +10 | |||||||||||
注:泄漏量试验介质为水。
气动活塞切断阀 允许压差
公称通径 mm | 20 | 25 | 32 | 40 | 50 | 65 | 80 | 100 | 125 | 150 | 200 | |
允许压差 | 气开 | 4.0 | 4.0 | 4.0 | 2.8 | 3.5 | 2.4 | |||||
气关 | 4.0 | 2.5 | 1.7 | 1.0 | 1.1 | 0.8 | 0.6 | |||||

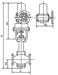
气动活塞切断阀 主要外形尺寸
常温型
公称 | L | H2 | 带手轮 | 不带手轮 | |||||
H | H1 | H3 | 重量kg | H | H1 | 重量kg | |||
20 | 180 | 53 | 662 | 447 | 222 | 39 | 574 | 359 | 26 |
25 | 190 | 111 | 732 | 46 | 644 | 33 | |||
32 | 210 | 117 | 744 | 48 | 656 | 35 | |||
40 | 230 | 131 | 885 | 570 | 280 | 85 | 778 | 463 | 61 |
50 | 255 | 146 | 915 | 89 | 808 | 65 | |||
65 | 285 | 181 | 1131 | 706 | 389 | 135 | 969 | 542 | 97 |
80 | 310 | 190 | 1147 | 143 | 983 | 99 | |||
100 | 355 | 194 | 1155 | 163 | 991 | 109 | |||
125 | 425 | 256 | 1588 | 1022 | 305 | 1305 | 739 | 218 | |
150 | 460 | 266 | 1608 | 331 | 1325 | 244 | |||
200 | 560 | 289 | 1659 | 445 | 1376 | 358 | |||
中温型
公称 | L | H2 | 带手轮 | 不带手轮 | |||||
H | H1 | H3 | 重量kg | H | H1 | 重量kg | |||
20 | 180 | 53 | 813 | 447 | 222 | 43 | 725 | 359 | 30 |
25 | 190 | 111 | 883 | 52 | 795 | 39 | |||
32 | 210 | 117 | 895 | 54 | 807 | 41 | |||
40 | 230 | 131 | 1036 | 570 | 280 | 90 | 929 | 463 | 66 |
50 | 255 | 146 | 1066 | 95 | 969 | 71 | |||
65 | 285 | 181 | 1296 | 706 | 389 | 145 | 1132 | 542 | 101 |
80 | 310 | 190 | 1310 | 155 | 1146 | 111 | |||
100 | 355 | 194 | 1318 | 172 | 1154 | 128 | |||
125 | 425 | 256 | 1803 | 1022 | 327 | 1520 | 739 | 240 | |
150 | 460 | 266 | 1823 | 356 | 1540 | 269 | |||
200 | 560 | 289 | 1874 | 464 | 1591 | 377 | |||
低温型
公称通径 | L | H2 | H3 | -100℃ | -200℃ | -250℃ | |||||||||
带手轮 | 不带手轮 | 带手轮 | 不带手轮 | 带手轮 | 不带手轮 | ||||||||||
H1 | H | H1 | H | H1 | H | H1 | H | H1 | H | H1 | H | ||||
20 | 180 | 53 | 222 | 500 | 1127 | 500 | 1039 | 700 | 1237 | 700 | 1239 | 900 | 1527 | 900 | 1439 |
25 | 190 | 111 | 500 | 1181 | 500 | 1093 | 700 | 1381 | 700 | 1293 | 900 | 1581 | 900 | 1491 | |
32 | 210 | 117 | 500 | 1193 | 500 | 1105 | 700 | 1393 | 700 | 1305 | 900 | 1593 | 900 | 1505 | |
40 | 230 | 131 | 280 | 500 | 1310 | 500 | 1203 | 700 | 1510 | 700 | 1403 | 900 | 1710 | 900 | 1603 |
50 | 255 | 146 | 500 | 1335 | 500 | 1228 | 700 | 1535 | 700 | 1428 | 900 | 1735 | 900 | 1628 | |
65 | 285 | 181 | 600 | 1554 | 600 | 1447 | 800 | 1754 | 800 | 1647 | 1000 | 1954 | 1000 | 1847 | |
80 | 310 | 190 | 600 | 1565 | 600 | 1458 | 800 | 1765 | 800 | 1658 | 1000 | 1965 | 1000 | 1858 | |
100 | 355 | 194 | 600 | 1569 | 600 | 1462 | 800 | 1769 | 800 | 1662 | 1000 | 1769 | 1000 | 1862 | |
125 | 425 | 256 | 378 | 700 | 1942 | 700 | 1809 | 900 | 2142 | 900 | 2009 | 1100 | 2342 | 1100 | 2209 |
150 | 460 | 266 | 700 | 1952 | 700 | 1819 | 900 | 2152 | 900 | 2019 | 1100 | 2352 | 1100 | 2219 | |
200 | 560 | 289 | 700 | 1982 | 700 | 1849 | 900 | 2182 | 900 | 2049 | 1100 | 2382 | 1100 | 2249 | |
良好的品质、优良的服务 奇高为你创造更多价值!
“奇高阀门”的期望,不断提升服务质量,精益求精,“真诚的服务”是“奇高”永恒的主题。“奇高”严格按照IS09001-2000 质量体系认证要求,质量严格把关, 责任到人,确保生产、销售、服务的健康运行。加强与用户沟通,竭诚为广大客户提供优良产品,贴心服务。特此我厂做出以下承诺:
产品标准:
产品严格按照中国GB、HG 标准和美国API等标准设计、制造、验收。密封面硬度达到国家规定要求,宽度超过国家标准。
售前服务:
产品介绍,技术交流,非标产品设计,疑难解答。
售中服务:
守信合同,及时供货,随时保持与客户联系。 对特殊或复制的产品,我厂安排技术人员对用户进行产品使用、故障排除
售后服务:
1、“奇高”牌产品品质期为自出厂起12个月,实行“三包”服务(包退、包换、保修)。
2、产品在使用中我厂定期组织技术、质检人员进行访问,征询用户对产品质量、 使用状况、改进意见等方面的反馈, 以便进一步提高产品质量。
3、对用户投诉质量问题,快速作出反应,售后服务人员在24-36小时(省外48小时)赶赴现场。
4、对售后服务,要求用户填写服务后的质量反馈信息表,并作出鉴定意见,以便提高奇高的服务质量。
1、客户如对产品有特殊要求,须在订货合同中提供以下说明:
a、结构长度;
b、连接形式;
c、公称直径、全通径、缩径、管道尺寸;
d、运行介质及温度、压力范围;
e、试验、检验标准及其他要求
2、本厂可根据客户特定要求配置各类驱动装置。
3、如由客户提供确定的阀门类型和型号时,客户应正确说明其型号的含义和要求,在供需双方理解一致的条件下签订合同。
4、期货、订货的客户请先来电函详细告诉所需的阀门型号、规格、数量以及交货时间、地点,并按总的30%预定金或全额货款及时汇入我厂帐户,其余货款待发货前汇入,以便及时安排发货。
订单流程:
1、客户采购清单传真至021-33872143,或来电咨询 021-33872141
2、收到客户采购清单,为客户提供阀门型号选型与报价(价格清单)。
3、具体商定:交货期、特殊要求等事宜。
订货须知:
1、客户如对产品有特殊要求,须在订货合同中提供以下说明:
|
|||||
|
|||||
2、本厂可根据客户特定要求配置各类驱动装置。
|
|||||
3、如由客户提供确定的阀门类型和型号时,客户应正确说明其型号的含义和要求,在供需双方理解一致的条件下签订合同。
|
|||||
4、期货、订货的客户请先来电函详细告诉所需的阀门型号、规格、数量以及交货时间、地点,并按总的30%预定金或全额货款及时汇入我厂账户, 其余货款待发货前汇入,以便及时安排发货。
|
售中服务:
守信合同,及时供货,随时保持与客户联系。
对特殊或复制的产品,我厂安排技术人员对用户进行产品使用、故障排除
售后服务:
1、“奇高”产品品质期为自出厂起12个月,实行“三包”服务(包退、包换、保修)。
2、产品在使用中我厂定期组织技术、质检人员进行访问,征询用户对产品质量、使用状况、改进意见等方面的反馈,
以便进一步提高产品质量。
3、对用户投诉质量问题,快速作出反应,售后服务人员在24-36小时(省外48小时)赶赴现场。
4、对售后服务,要求用户填写服务后的质量反馈信息表,并作出鉴定意见,以便提高“奇高”的服务质量。
声明 |
|