ZCZG/ZCZH高温高压电磁阀
- 销售:021-32051999
- 销售:021-32050777
- 传真:021-66099555
详情介绍
- 产品介绍
- 服务承诺
- 订货流程
ZCZG/ZCZH高温高压电磁阀是先导直动型的电磁阀,其通用介质范围较广,可分别使用于水、轻油、重油、非腐蚀性气体及蒸汽等流体,如电站抽气管道疏水系统和蒸发器的排气系统中,主要是对管道中的介质进行双位自动调节和远程控制。
结构特点
耐高温:采用金属硬密封,提高了使用温度。介质流体温度可达425℃
耐磨:选材合理,阀杯和导向套间巧妙地利用流体的润滑作用,减少磨损。
采用杠杆原理保证线圈和阀体隔离
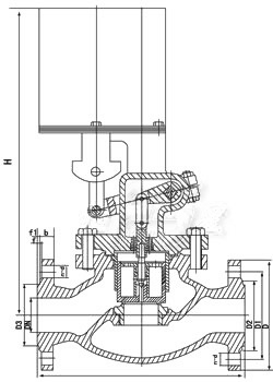
结构原理
电磁阀电磁铁通电时,连杆被提升,带动转轴转动,副阀打开。由于副阀被开启,
主阀阀杯上部的压力流体被排出,因此主阀阀杯下部的压力比上部高,这样下部的压力将主阀阀杯向上推开。主阀被打开后,上下压力相等,阀杯在电磁力、上下压力作用下,置于平衡状态,阀门开通。断电时在衔铁自重及返回弹簧作用下, 关下副阀,副阀关闭后,随之主阀阀杯上部的压力升高而将主阀阀杯压下,达到断流密封作用,阀门关闭。
型号说明

技术参数
介质温度℃ | ZCZG | ≤250 | |||||||
ZCZH | ≤400 | ||||||||
公称压力(MPa) | ZCZG | 2.5 | |||||||
ZCZH | 4.0 | ||||||||
工作压差(MPa) | ZCZG | 0.1-2.5 | |||||||
ZCZH | 0.1-4.0 | ||||||||
公称通径(MPa) | 15 | 20 | 25 | 32 | 40 | 50 | 65 | 80 | 100 |
功耗 | 130VA | 480VA | |||||||
电源电压 | AC220V DC 24V 其余规格可作特殊订货 | ||||||||
额定流量系数(KV) | 3.8 | 7.4 | 10.3 | 18.8 | 25.7 | 41 | 58 | 85 | 154 |
泄漏量(ml/min) | 按JB/T7352-94·F规定 | ||||||||

安装尺寸
DN | L | H | D | D1 | D2 | D3 | b | f1 | f | n-d |
10 | 160 | 298 | 90 | 60 | 34 | 41 | 16 | 4 | 2 | 4-Ø14 |
15 | 160 | 298 | 95 | 65 | 39 | 45 | 16 | 4 | 2 | 4-Ø14 |
20 | 200 | 304 | 105 | 75 | 50 | 55 | 16 | 4 | 2 | 4-Ø14 |
25 | 200 | 304 | 115 | 85 | 57 | 65 | 16 | 4 | 2 | 4-Ø14 |
32 | 200 | 314 | 140 | 100 | 65 | 78 | 18 | 4 | 2 | 4-Ø18 |
40 | 260 | 460 | 150 | 110 | 75 | 85 | 18 | 4 | 3 | 4-Ø18 |
50 | 300 | 460 | 165 | 125 | 87 | 100 | 20 | 4 | 3 | 4-Ø18 |
65 | 290 | 433 | 185 | 145 | 109 | 120 | 22 | 4 | 3 | 8-Ø18 |
80 | 310 | 433 | 200 | 160 | 120 | 135 | 22 | 4 | 3 | 8-Ø18 |
100 | 350 | 461 | 235 | 190 | 149 | 160 | 24 | 4.5 | 3 | 8-Ø22 |
良好的品质、优良的服务 奇高为你创造更多价值!
“奇高阀门”的期望,不断提升服务质量,精益求精,“真诚的服务”是“奇高”永恒的主题。“奇高”严格按照IS09001-2000 质量体系认证要求,质量严格把关, 责任到人,确保生产、销售、服务的健康运行。加强与用户沟通,竭诚为广大客户提供优良产品,贴心服务。特此我厂做出以下承诺:
产品标准:
产品严格按照中国GB、HG 标准和美国API等标准设计、制造、验收。密封面硬度达到国家规定要求,宽度超过国家标准。
售前服务:
产品介绍,技术交流,非标产品设计,疑难解答。
售中服务:
守信合同,及时供货,随时保持与客户联系。 对特殊或复制的产品,我厂安排技术人员对用户进行产品使用、故障排除
售后服务:
1、“奇高”牌产品品质期为自出厂起12个月,实行“三包”服务(包退、包换、保修)。
2、产品在使用中我厂定期组织技术、质检人员进行访问,征询用户对产品质量、 使用状况、改进意见等方面的反馈, 以便进一步提高产品质量。
3、对用户投诉质量问题,快速作出反应,售后服务人员在24-36小时(省外48小时)赶赴现场。
4、对售后服务,要求用户填写服务后的质量反馈信息表,并作出鉴定意见,以便提高奇高的服务质量。
1、客户如对产品有特殊要求,须在订货合同中提供以下说明:
a、结构长度;
b、连接形式;
c、公称直径、全通径、缩径、管道尺寸;
d、运行介质及温度、压力范围;
e、试验、检验标准及其他要求
2、本厂可根据客户特定要求配置各类驱动装置。
3、如由客户提供确定的阀门类型和型号时,客户应正确说明其型号的含义和要求,在供需双方理解一致的条件下签订合同。
4、期货、订货的客户请先来电函详细告诉所需的阀门型号、规格、数量以及交货时间、地点,并按总的30%预定金或全额货款及时汇入我厂帐户,其余货款待发货前汇入,以便及时安排发货。
订单流程:
1、客户采购清单传真至021-33872143,或来电咨询 021-33872141
2、收到客户采购清单,为客户提供阀门型号选型与报价(价格清单)。
3、具体商定:交货期、特殊要求等事宜。
订货须知:
1、客户如对产品有特殊要求,须在订货合同中提供以下说明:
|
|||||
|
|||||
2、本厂可根据客户特定要求配置各类驱动装置。
|
|||||
3、如由客户提供确定的阀门类型和型号时,客户应正确说明其型号的含义和要求,在供需双方理解一致的条件下签订合同。
|
|||||
4、期货、订货的客户请先来电函详细告诉所需的阀门型号、规格、数量以及交货时间、地点,并按总的30%预定金或全额货款及时汇入我厂账户, 其余货款待发货前汇入,以便及时安排发货。
|
售中服务:
守信合同,及时供货,随时保持与客户联系。
对特殊或复制的产品,我厂安排技术人员对用户进行产品使用、故障排除
售后服务:
1、“奇高”产品品质期为自出厂起12个月,实行“三包”服务(包退、包换、保修)。
2、产品在使用中我厂定期组织技术、质检人员进行访问,征询用户对产品质量、使用状况、改进意见等方面的反馈,
以便进一步提高产品质量。
3、对用户投诉质量问题,快速作出反应,售后服务人员在24-36小时(省外48小时)赶赴现场。
4、对售后服务,要求用户填写服务后的质量反馈信息表,并作出鉴定意见,以便提高“奇高”的服务质量。
声明 |
|